Проект-скорректированной-Сметы-по-членским-взносам-к-Общему-собранию членов СНТ “Эра”-18.04.2026.pdf
Уведомление о проведении собрания 18.04.2026
АКТ ОСМОТРА ЭЛЕКТРОУСТАНОВКИ 28.02.2026 r.
Открытое заседание правления 29.03.2026г. в 10 ч.30 мин. Приглашаются все члены СНТ
Во исполнение п. 5 внеочередного общего собрания членов СНТ Эра от 15.03.2026г.:
1. Письмо подрядчика ООО ППМ «Мастер-План», в т.ч. ответы на обращения членов СНТ Максимовой Е.В., Шагиной Е.Н., Клыпиной О.Ф., Петрова И.В.; садоводов Чиргуна С.С., Еременко И.В. (письмо прилагается):
Ответ-ООО-ППМ-Мастер-План-25.03.2026.pdf
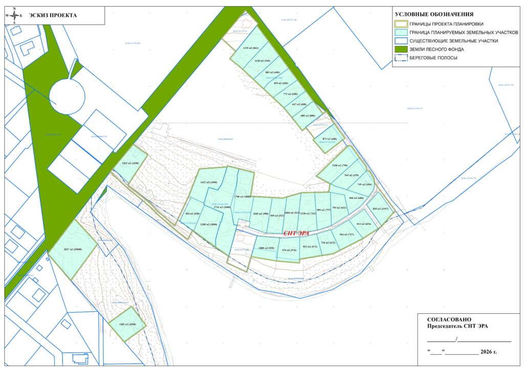
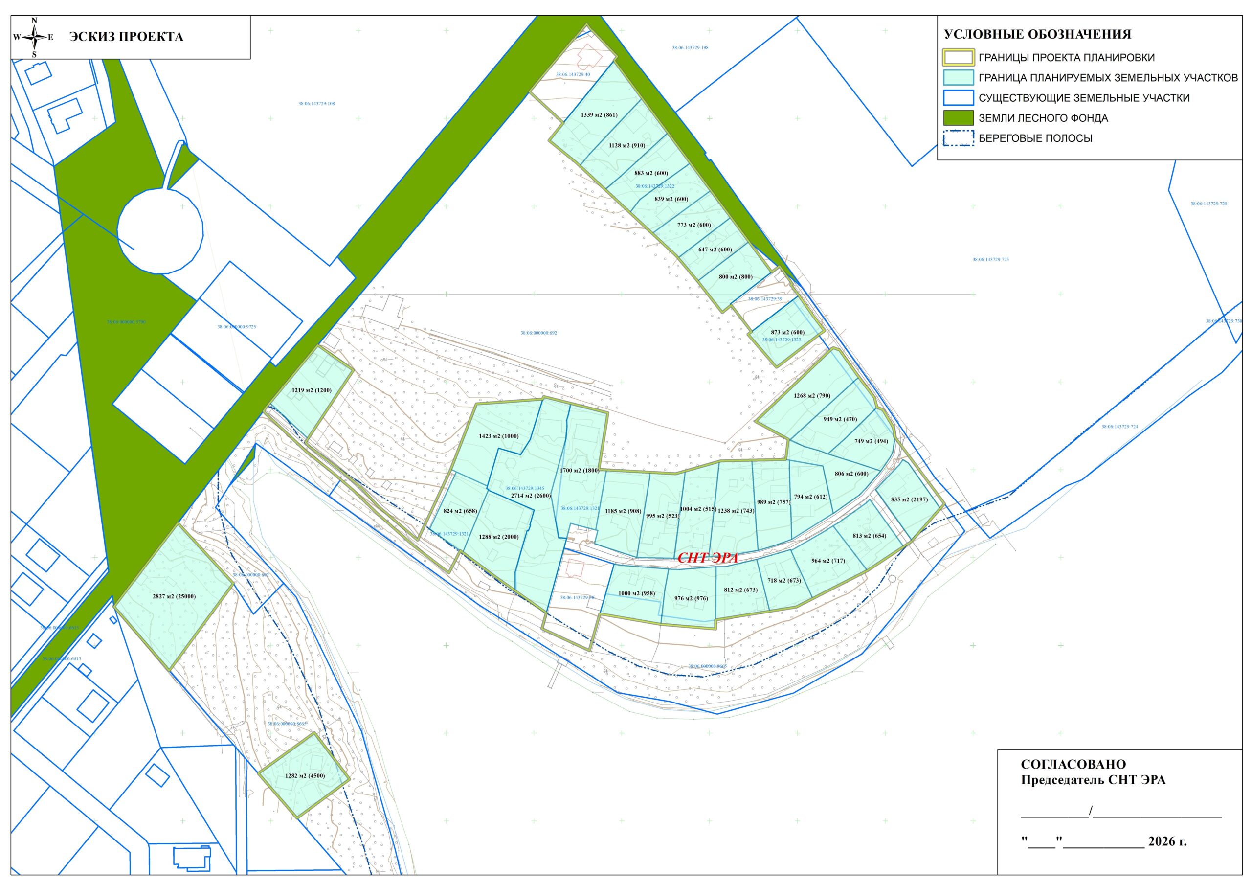
2. Эскиз (новый) для проектирования и межевания (прилагается)
3. Объявление о проведении открытого заседания правления на 10 ч.30 мин. 29.03.2026г. Приглашаются все члены СНТ.
Повестка: 1.Обсуждение нового эскиза проектов планировки и территории и межевания СНТ; 2. О проведении внеочередного общего собрания членов СНТ, утверждение повестки дня этого собрания, назначения дня и места проведения собрания. Место проведения: г. Иркутск, ул. Партизанская, 46а, 2 этаж .
В связи с перебоями в работе мессенджера Телеграм, рассылка осуществляется по имеющимся эл. адресам.
В ближайшее время чат СНТ Эра будет открыт в мессенджере MAX.

Эскизы для обсуждения и принятия решения на внеочередном общем собрании СНТ Эра 15.03.2026г
Ответ от Администрации Иркутского района по Генплану и ПЗЗ
Уведомление о созыве общего собрания 15.03.2026
Протокол заседания правления_14_02_2026г
Важная информация для членов СНТ и садоводов к собранию 31.01.2026
Сегодня отказали в аренде запланированного для собрания помещения. В связи с этим собрание будет проведено по адресу: Ул. Байкальская 244а, 3 этаж. ТЦ ДОКА.
Начало: строго в 10.00 (не изменилось время).
С 9.30 будет регистрация.
Уведомления о собрании будут разосланы вторично, как получим счет на оплату помещения. Информация об изменении места проведения будет размещена на сайте Снт сегодня (возможные сроки изменения в организации собрания соблюдены).
Председатель СНТ Эра. Свердлова Н.А.
